Appartement
Lyon 6ème, 69006
T2 de 55.25m2 - 275 000€
Présentation :
| État du bien : | À rénover |
| Nb de pièces : | 2 |
| Chambre : | 1 |
| Surface : | 55.25 m2 |
| Type de chauffage : | Gaz |
| Prix : | 275 000 € |
| Charges : | 200 € |
| Taxe foncière : | 664 € |
Bâtiment économe
365
Bâtiment énergivore
Une visite? Plus d'information?
×
Le Groupe Evotion vous propose ce charmant T2 de 55 m² à fort potentiel, idéalement situé sur le prestigieux Cours Franklin Roosevelt, à l'angle de la rue de Créqui.
Situé au sein d’un bel immeuble ancien de standing parfaitement entretenu et sécurisé avec ascenseur, cet appartement (à rénover entièrement) offre un cadre de vie privilégié et de superbes possibilités d'aménagement.
Bénéficiant d'un emplacement exceptionnel, le bien se trouve à seulement 1 minute à pied de la station de métro Foch et de toutes les commodités du 6ème arrondissement.
Ses points forts :
-Une belle hauteur sous plafond (3m67)
-Le charme de l'ancien avec un beau parquet et une cheminée d'époque dans la chambre.
-Un fort potentiel de réagencement : la cloison de la cuisine n'étant pas porteuse, il est tout à fait possible de l'ouvrir pour créer une grande et belle pièce de vie de 27m2
-Une cave en sous-sol de 9m2 vient compléter ce bien.
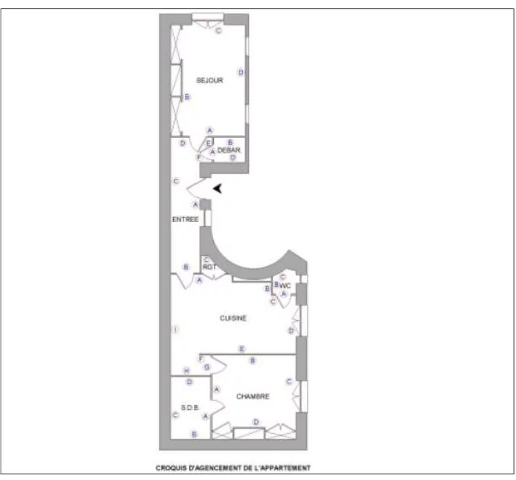
Il se compose de :
Une entrée
Une pièce de vie
Une cuisine (pouvant être ouverte sur le séjour)
Une chambre avec parquet et cheminée
Une salle de bains
Un WC séparé
Chauffage / eau chaude : Gaz individuel
DPE : F
Charges trimestrielles : 200€
Taxe foncière : 664€
Prix de vente : 275 000 € FAI
Honoraires à la charge du vendeur compris dans le prix ci-dessus.
Bien soumis au statut de la copropriété. Pas de procédure en cours.